Rif. : 2409
Appartamento € 185.000,00
Coviolo Zona Zanelli
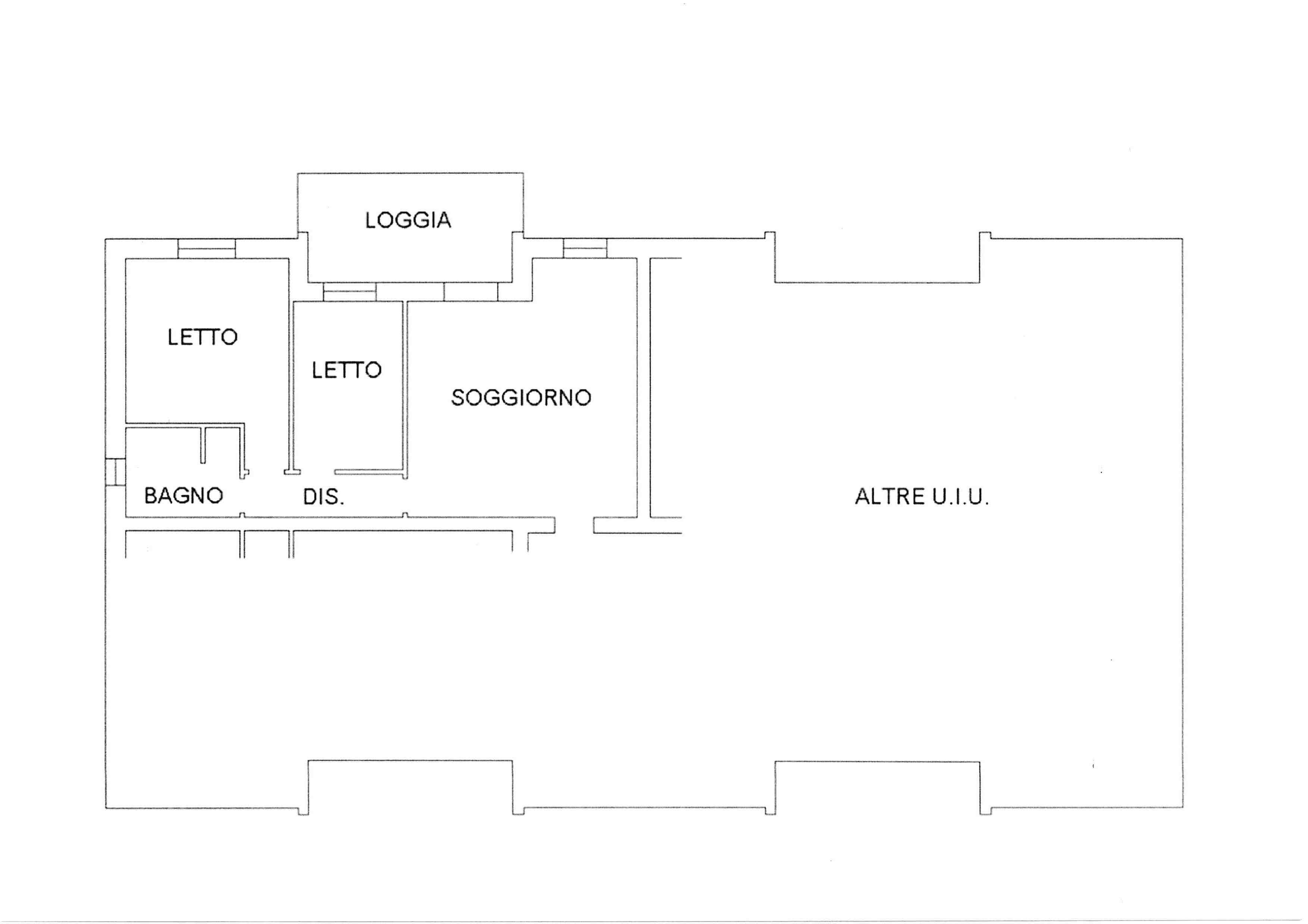
In zona residenziale, proponiamo in piccola palazzina recintata di recente costruzione (anno 2010), appartamento arredato in ottime condizioni composto da: ingresso, pranzo-soggiorno spazioso con cucina a vista, ampia loggia, due camere da letto, bagno, cantina e grande garage. Riscaldamento autonomo, condizionatori e inferiate.



























